Casa indipendente in vendita

Fara Gera D'Adda, Via Longobardica
€ 180.000
5 locali 5 locali
250 Mq 250 Mq
2 bagni 2 bagni

Casa indipendente in vendita

Fara Gera D'Adda, Via Longobardica

Descrizione annuncio

FARA GERA D'ADDA:

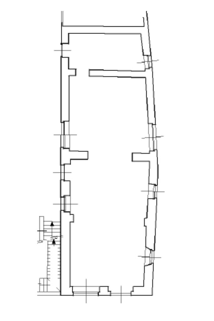
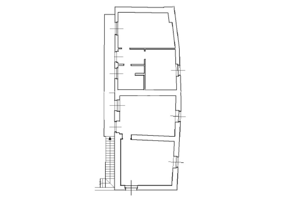
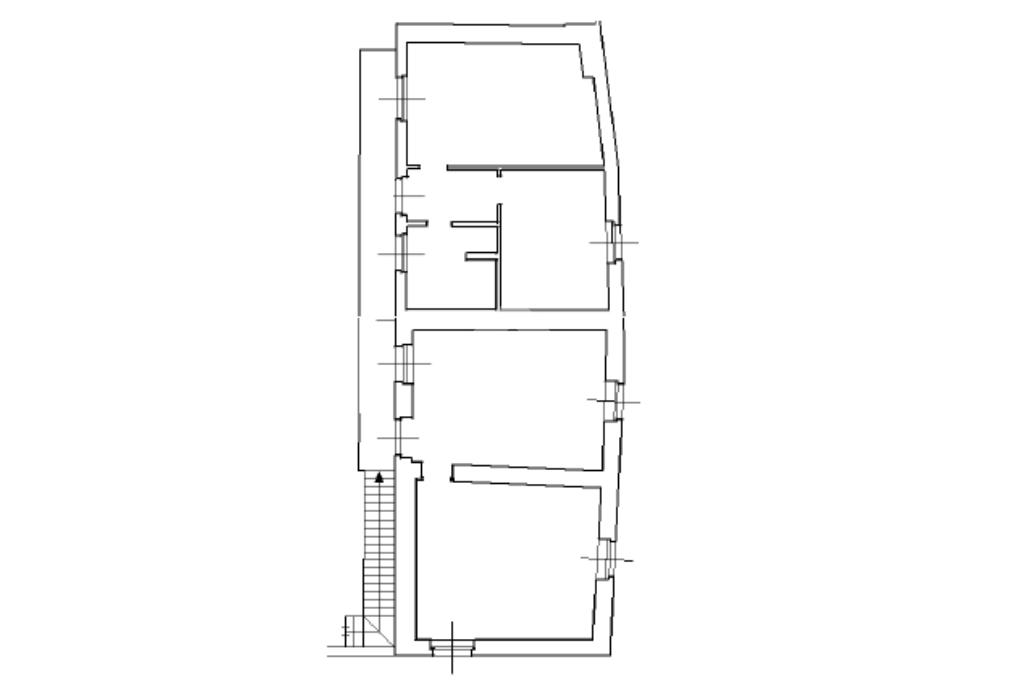
Proponiamo in vendita, nel centro storico del paese, intero stabile composto da due appartamenti e locale commerciale, ideale per chi cerca spazio e versatilità.

L'immobile si sviluppa su più livelli e offre al piano primo due appartamenti con balcone che arricchisce la struttura offrendo uno spazio esterno privato.

Ed al piano terra un locale commerciale che offre potenziali opportunità di investimento o di utilizzo multifunzionale.

Completa la proprietà una comoda cantina.

Situata nel centro del paese, la soluzione beneficia di una posizione strategica, con facile accesso ai servizi locali.

L'immobile è da ristrutturare, permettendo di personalizzare gli spazi secondo le proprie esigenze e gusti.

Il gruppo Tecnocasa, offre consulenza riguardo tutte le fasi della compravendita e valutazioni gratuite del proprio immobile.

Inoltre, la collaborazione con il gruppo Kiron ci consente di fornirvi consulenza a titolo gratuito ed informativo per l'erogazione dei mutui bancari.

Mostra tutto

Nelle vicinanze

Trasporto pubblico Trasporto pubblico
Trasporto pubblico
1,8 Km
Via Perego - Via Cimitero (Vaprio d'Adda)
Via Perego - Via Cimitero (Vaprio d'Adda)
2,5 Km
Ricariche auto elettriche Ricariche auto elettriche
Bennet Vaprio d'Adda
2,3 Km
Evbility Comune di Canonica d'Adda
2,4 Km
Scuole Scuole
Scuole
260 m
Scuola Materna
1,6 Km
Liceo Scientifico Linguistico Statale Giordano Bruno
2,1 Km
Scuola Elementare Guarnazzola
2,5 Km
Farmacia Farmacia
Farmacia
1,4 Km
Farcom Farmacia Comunale
2,2 Km
Farmacia Peschiulli
2,7 Km
Ospedali Ospedali
Ospedale di Vaprio d'Adda
2,2 Km
Supermercati Supermercati
Bennet
2,3 Km
Mercato di Vaprio d'Adda
2,6 Km
Conad
2,7 Km
Bar Bar
Il baricentro
2,1 Km
L'Oasi
2,2 Km
Ristoranti Ristoranti
La Corrente
250 m
Hotel Ristorante Vergani
270 m
Barabitt
1,4 Km
Il Birbante
1,7 Km
Ristorante La Lanca sull'Adda
1,7 Km
Mostra tutto

Caratteristiche

Rif.:
61176930
Piano:
Su più livelli di 2
Totale piani:
2
Posti auto:
1
Balconi:
1
Camere da letto:
3
Mostra tutto
Prezzo Prezzo
€ 180.000
Rata mutuo Rata mutuo
€ 853 / mese
Spese annue Spese annue
€ 0
Proponi il tuo prezzoProponi il tuo prezzo

Classe Energetica

G
G
G
G
G
G
G
G
G
EP invernale del fabbricato:
EP estiva del fabbricato:
Anno di costruzione:
1967
Riscaldamento:
Autonomo
Tipo impianto:
A stufa
Tipo alimentazione:
Altro

Ti interessa visionare l'immobile?

Fissa un appuntamento  Fissa un appuntamento

Richiedi informazioni

Clicca su Leggi per aprire l'informativa
* Questi campi sono obbligatori

Calcola il tuo mutuo

Semplice e senza impegno
Anticipo

( % )
Mutuo

( % )

pochi semplici passi

inserisci i tuoi dati
Questionario completato
Grazie per aver richiesto un appuntamento senza impegno con un nostro Consulente del Credito e Assicurativo.

Hai inserito correttamente tutti i dati necessari e a breve riceverai una e-mail con un link da convalidare per inviare i tuoi dati.
Affiliato
Tecnoverdello Srl
Via Longobardica, 4/D 24045 Fara Gera D'Adda (BG)

Il nostro staff


  • Gabriele Delia
    Collaboratore

  • Ilaria Diazzi
    Collaboratrice

  • Mara Monde
    Responsabile

  • Daniela Sempione
    Collaboratrice

  • Riccardo Villa
    Affiliato
Via Longobardica, 4/D 24045 Fara Gera D'Adda (BG)
Zona: Fara Gera D'Adda-Canonica D'Adda e Pontirolo Nuovo
Mostra su mappa
Orari: Lunedi-Venerdi 9:00-12:30 14:30-20:00 Sabato 9:00-12:30 14:30-18:00
Affiliato
Tecnoverdello Srl
Via Longobardica, 4/D 24045 Fara Gera D'Adda (BG)

2026 Tecnocasa Franchising S.p.A. - P. IVA 08365160152 - Via Monte Bianco 60/A 20089 Rozzano (MI). Ogni agenzia ha un proprio titolare ed è autonoma. Privacy policy | Policy utilizzo | Cookie policy